Park Avenue Infill Residence
Single-family home + garage suite | Kelowna, BC | 2021
A family home and detached garage suite added to an existing Abbott-area property while keeping the original dwelling in place. Designed for a tight and irregular lot with converging setbacks, high water table considerations, and close site relationships, the project carefully balances infill density, neighbourhood fit, and practical family living.
Completed house
The completed house was designed to sit comfortably within the neighbourhood while making efficient use of a tight infill site.
Tight-site infill shaped to fit the neighbourhood
This project added a new single-family home and a detached garage with a suite above to an existing property while keeping the original dwelling in place. Located in Kelowna’s Abbott-area neighbourhood, the design had to respond not only to a tight and irregular lot, but also to the established character of an area shaped by older homes and a strong residential identity.
Because the existing dwelling sat deep on the property, the remaining buildable area was limited and awkwardly shaped. Converging setbacks, the need to fit a detached accessory building, close relationships between structures, and floodplain considerations tied to the high water table all played a role in shaping the design. The project also required coordination around the existing dwelling to ensure it met current minimum requirements in key areas as part of the overall site strategy.
Rather than treating those constraints as purely limiting, the design used them to guide a more careful response. The new house was planned as a practical family home, with the primary suite on the main floor, additional bedrooms above, and a second-floor recreation space that provides separation from the main open living areas below. A generous great room, office, and strong everyday family planning help the house feel comfortable and complete despite the tight site conditions.
The detached garage and suite were an important part of making the overall property work, but they also increased the technical demands of the project. Spatial separation and code coordination required close attention, particularly because of the proximity between the new buildings. Throughout the design, the goal was to make the infill feel settled and appropriate to the neighbourhood rather than forced onto the lot.
A photo-match study was also used during the process to help communicate to the City how the new house would sit behind the existing dwelling and how the overall project would read from Park Avenue. Looking back alongside the finished result, that early work shows how closely the design intent carried through into the built project.
Early rendering
An early rendering used to establish the overall character of the new home and accessory building.
Photo-match study
A photo-match study prepared to show how the new house would sit behind the existing dwelling and read from Park Avenue.
Site plan
The site plan shows how the new house and detached garage suite were fitted onto the property while keeping the existing dwelling in place.
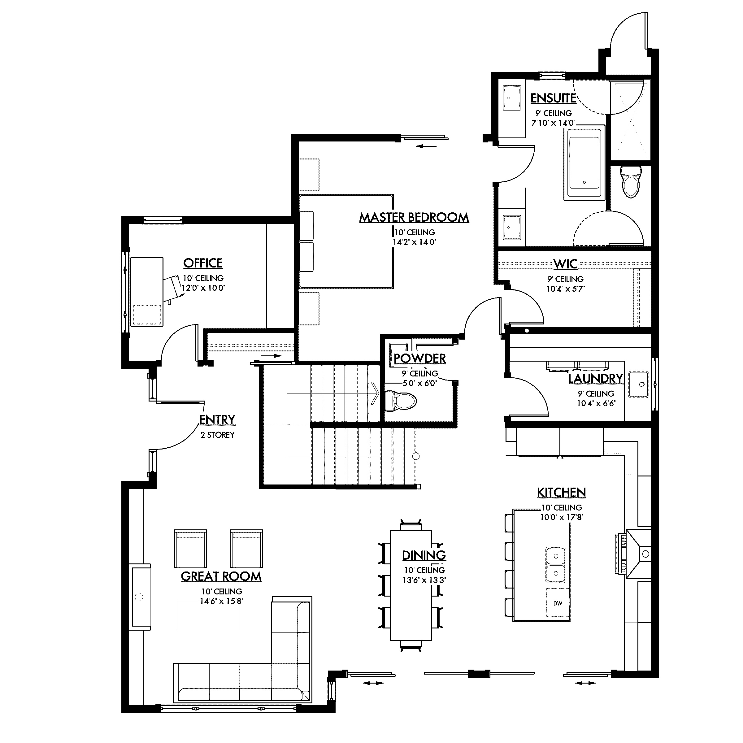
Main floor plan
The main floor organizes everyday family living around an open central space, with the primary suite and support spaces carefully arranged to work within the constraints of the site.
Second floor plan
Upstairs, the plan provides additional bedrooms and a recreation area, giving the home separation and flexibility without relying on a basement.
Before development
Before development, the site included an existing garage that was removed to make room for the new infill work.
Completed exterior
The completed infill home was designed to feel more generous and substantial than a typical carriage house.
Front approach
Defined entry elements and careful exterior detailing help give the home a stronger sense of arrival.