Monck Park Residence
Single-family home | Nicola Lake, BC | Under construction
A custom family home currently under construction above Nicola Lake, designed for a steep and constrained site with significant technical and regulatory considerations. The house is organized to open fully to the view while balancing family comfort, practical daily use, and a careful response to topography, easements, and protected areas on the property.
Long-planned for family life on a difficult site
Monck Park Residence is a custom family home currently under construction on a steep site overlooking Nicola Lake. Planned over a long period with the owners, the project has been shaped as a true long-term home: generous, carefully considered, and closely tied to the way the family will live in it over time.
The site brought substantial constraints from the beginning. In addition to the steep topography, the design had to work around foreshore setbacks, archaeologically sensitive areas, and a significant easement on the property. Those conditions required a careful response to siting, massing, and access, with the house shaped to fit the land rather than forcing a simpler solution onto it.
The design takes a restrained West Coast modern approach, with long horizontal lines, generous overhangs, and a low overall profile that helps the house sit more comfortably in the landscape. Private outdoor areas at the entry create a sense of arrival, while the main living spaces open toward Nicola Lake and take full advantage of the view.
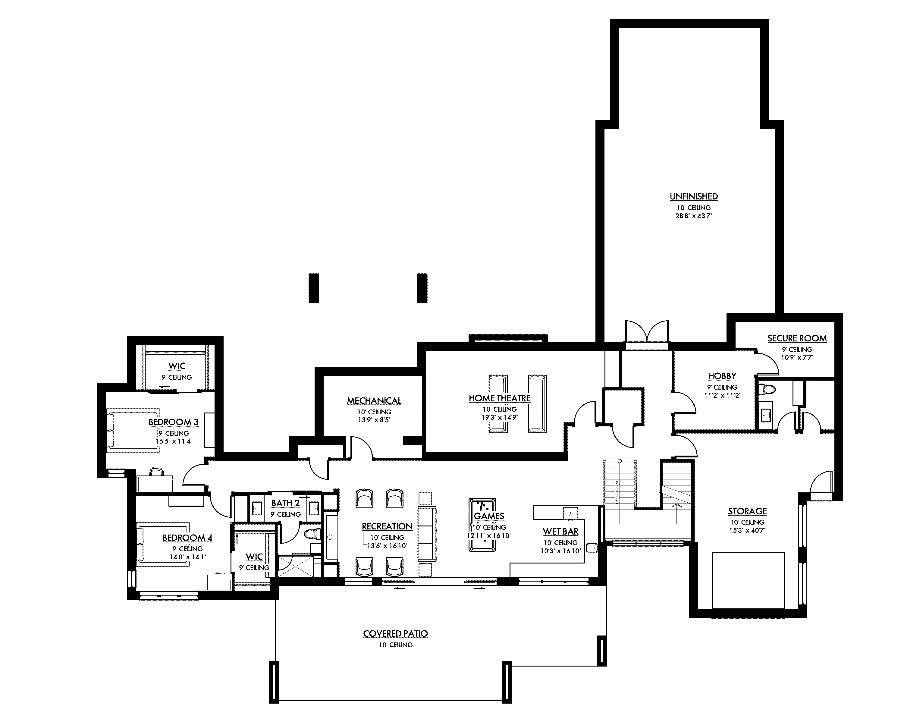
Inside, the home is organized around both family life and the experience of the site. The principal suite is located on the main floor, while the children’s bedrooms and shared recreation spaces are placed below, giving the home both connection and separation as the family grows. A large deck and patio facing the lake extend the living spaces outward, and a glazed feature stair helps carry light and views through the house as you move between levels.
The planning also reflects the practical side of a home at this scale. A generous triple garage, substantial storage below, and well-developed pantry, mudroom, and laundry spaces support everyday living without turning the house into a collection of showpiece rooms. Throughout the project, close coordination with the structural engineer has been essential to resolve the demands of the site and ensure the house performs well technically as it takes shape. The entire foundation and basement were constructed in insulated concrete forms, responding both to the technical demands of the site and the long-term durability of the home.
Construction began in March 2026, with completion anticipated in spring 2027.
Entry approach
The entry sequence was designed to create a stronger sense of arrival while maintaining privacy from the approach.
Lake-facing side
The lake-facing side of the house gathers the main living spaces, deck, and patio toward the view.
Selected floor plans
Main floor plan
The main floor brings together the primary living spaces and principal suite, with strong support spaces including pantry, mudroom, laundry, and direct garage access.
Lower level plan
The lower level provides children’s bedrooms, recreation space, and additional support areas while working with the grade and constraints of the site.