Selected Project

Cadder Avenue House + Carriage House

House + carriage house | Kelowna, BC | 2021

A house and carriage house developed on a hospital-area infill site in Kelowna after the original home was lifted and relocated. Shaped through extensive work with the City, the design aimed for a timeless presence that would feel at home among the area’s older houses, drawing on traditional forms, steep rooflines, and a restrained material palette.

Project Overview

Designed to feel settled within the neighbourhood

Located in Kelowna’s hospital area, this project began with an unusual starting point: the original house on the site was lifted and moved to a new location, making way for a new house and carriage house carefully shaped for the property that remained. At the time, this kind of infill work involved significant coordination and negotiation with the City of Kelowna, and the project required extensive planning effort to move forward successfully.

Rather than treat the site as an opportunity for something conspicuously new, the goal was to create a home that would feel settled and familiar within the neighbourhood. The surrounding area includes many older houses with a strong sense of character, so the design looked to traditional forms and proportions for its direction. Steep rooflines, simple massing, dark trim, and a restrained exterior palette were used to give the home a lasting presence that feels connected to its setting.

The house was designed to feel timeless rather than nostalgic. It takes cues from older residential precedents without turning into imitation, aiming instead for a sense of permanence, comfort, and quiet confidence. The result is a home that feels as though it belongs in the streetscape, while still meeting the realities of a new infill project.

The carriage house was an important part of the overall site strategy, helping the property work harder while still maintaining a coherent residential character. Together, the buildings reflect a careful response to context, planning constraints, and the long-term life of the neighbourhood.

Renderings

Renderings and Built Result

Early renderings were an important part of the design process for this project, helping to test the character of the house and carriage house, study their relationship on the site, and communicate the intended materials and form. Looking back alongside the completed photographs, they also show how closely the original design intent carried through into the finished result.

Project Drawings

Selected floor plans

Main floor plan

The main floor was organized around clear everyday living, with generous shared spaces balanced by more private rooms for work, retreat, and daily routines. The plan also helped tie the house to the site, with the carriage-house relationship and service areas carefully worked into the overall layout.

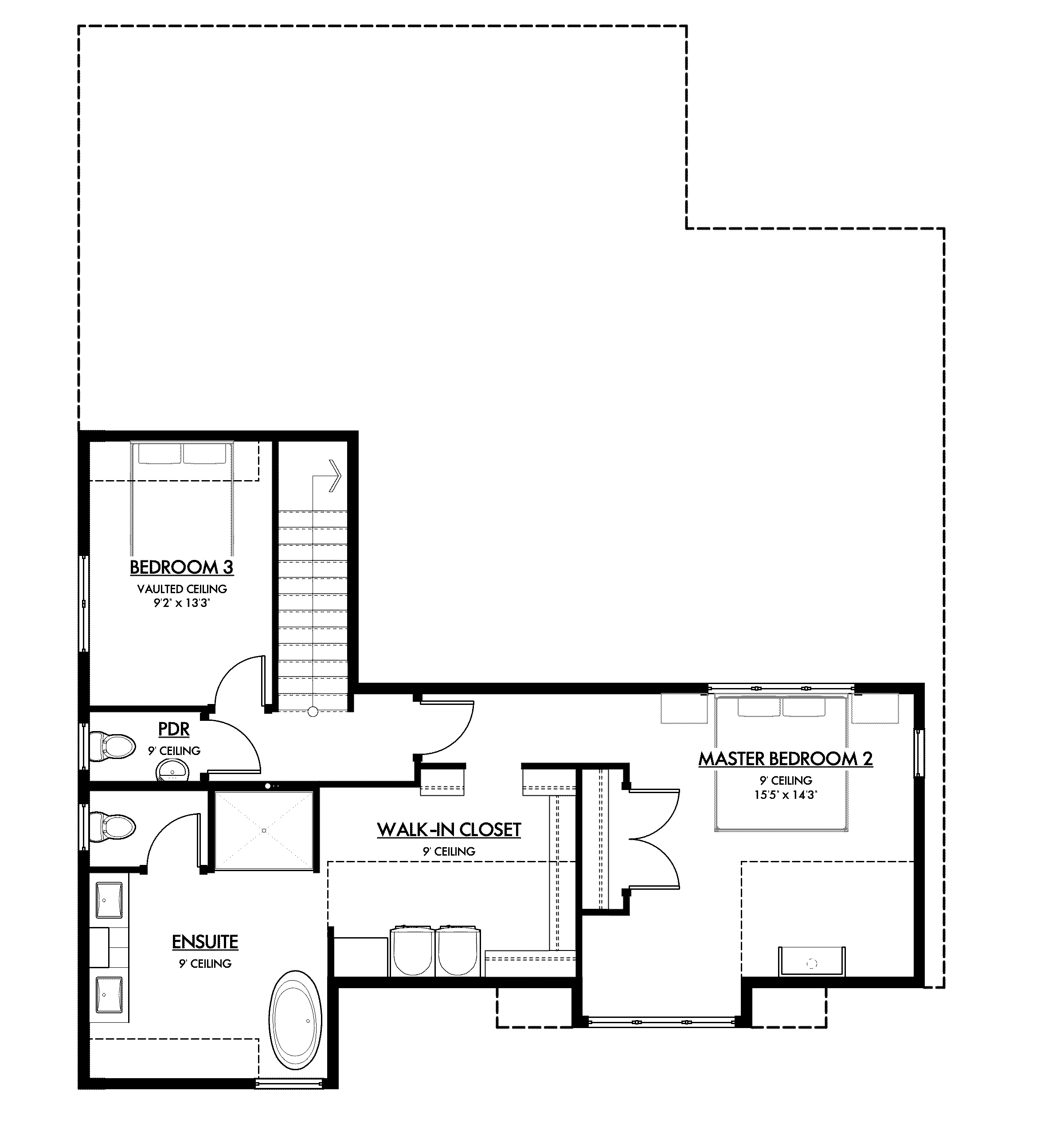
Second floor plan

Upstairs, the plan concentrates the more private bedroom spaces while keeping circulation compact and efficient. The layout supports family life without excess, making careful use of the upper level while maintaining the straightforward character of the house.